"Im Türmle"

Ulm, Germany

Nullemissionsquartier

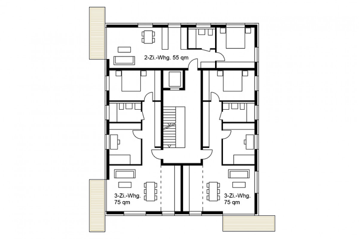
Kostengünstiger und CO2-neutraler Mietwohnungsbau zur Verdichtung eines Quartiers an der Ulmer Peripherie war gefragt. Unterschiedliche Haustypen wurden vorgeschlagen, so dass insgesamt eine Angebotsvariabilität mit verschiedenen Wohnungsgrößen und -zuschnitten entsteht, die variierenden Lebenssituationen und Wohnpräferenzen Rechnung tragen kann. PV wird auf Dächern und in einem vorgegebenen Raster auf gut besonnten Fassadenflächen platziert.

  • Status

    Mehrfachbeauftragung 2010

  • Client

    Ulmer Wohnungs- und Siedlungs-Gesellschaft mbH

  • Architecture

    GIES ARCHITEKTEN BDA

  • Energy consulting

    TRANSSOLAR, Stuttgart

  • Surface

    28.270 m² (Gross floor area)

  • Categories public, material conscious, revitalize, thinking ahead