Quartier d’habitation Tullastraße
Wörth am Rhein, Allemagne
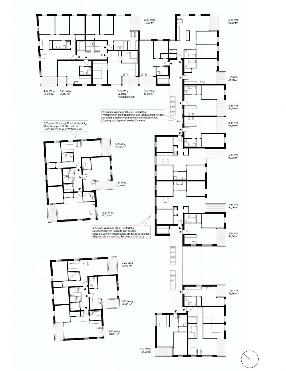
Quartier d’habitation en construction bois
Le bâti est modelé suivant le principe de la soustraction. La fracturation des volumes lie densité et légereté et crée une transition douce entre la salle d’une côté et le pavillonaire de l’autre. Une nouvelle place au nord-est, marqué par un gabarit élevé, constitue le germe d‘une urbanité dans ce quartier.
 
 - StatutEn cours de planification 
- Maître d'ouvrageWohnbau Wörth am Rhein GmbH 
- ArchitectureGIES ARCHITEKTEN BDA 
- Paysagefreisign Landschaftsarchitektur, Freiburg 
- Surface4.319 m² 
- Concours1re prix / 2020 
- MaquetteJochen Zimmermann, Freiburg 
- Catégories communautaire, transformer, repenser
 
  
  
  
 