Baugruppe B15

Freiburg Gutleutmatten, Deutschland

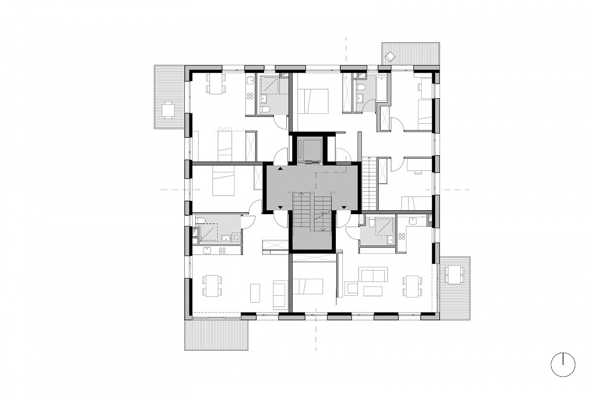
Vier geförderte Mietwohnungen und acht Eigentumswohnungen bilden zusammen eine Baugruppe. Tragende Außenwände und ein kreuzförmiger Erschließungskern lassen Raum für unterschiedlichste Wohnkonzepte. Die Treppenpodeste sind als Schwellenbereiche vor den Wohnungseingangstüren gestaltet. Die Dachterrasse steht allen Hausbewohnern zur Verfügung und kompensiert so die Knappheit ebenerdiger Freifläche.

Schwarzplan
  • Status

    2018 fertiggestellt

  • Auftraggeber

    Baugruppe B 15  

  • Architektur

    GIES ARCHITEKTEN BDA / Christian Erdrich (LP 5-9)

  • Landschaftsarchitekten

    Henne Korn Landschaftsarchitekten, Freiburg

  • Weitere Projektbeteiligte

    Ingenieurbüro Paul Brett, Freiburg (Tragwerksplanung); Ingenieurbüro Torben Steenhoff, Todtnau (Bauphysik / TGA)

  • Nutzungsfläche

    852  m²

  • Fotos

    Jessica Alice Hath / Oliver Kern

  • Kategorie Gemeinschaftlich