Centre Culturel Art'Rhena
Ile du Rhin, Vogelgrun, Frankreich
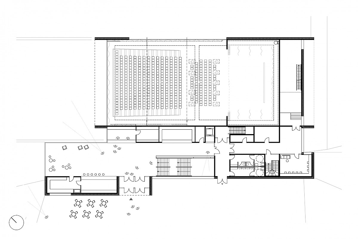
Die Architektur erwächst aus den Besonderheiten des Ortes: Der Konzert- und Veranstaltungssaal für 400 Besucher schiebt sich in die Uferböschung, die Sichtbezüge auf den Rhein und das am anderen Ufer aufsteigende Bergmassiv von Breisach werden in Szene gesetzt. Das Raumangebot umfasst neben dem flexibel nutzbaren Saal ein Informationszentrum für Touristen und Grenzgänger, einen Festplatz und eine Aussichtsplattform. Zudem beinhaltet das Zentrum mehrere Büro- und Konferenzräume, die eine hybride Nutzung möglich machen.
- Status
2021 fertiggestellt
- Auftraggeber
Communauté de Communes Pays Rhin-Brisach
- Architektur
GIES ARCHITEKTEN BDA / Hugues Klein Architects, Mulhouse
- Landschaftsarchitekten
Bruno Kubler Paysagiste, Strasbourg
- Weitere Projektbeteiligte
Batiserf, Fontaine (Statik); Transsolar, Paris/Stuttgart (Bauphysik); solares bauen SARL, Strasbourg (TGA); L et N Ingénerie, Mulhouse (Elektroplanung); Lollier Ingénerie, Mittelschaeffolsheim (Infrastruktur); Architecture & Technique, Paris (Bühnentechnik); Euro Sound Project, Strasbourg (Akustik); Bureau M. Fogue, Le Rivier d'Apprieu (Kostenplanung)
- Nutzungsfläche
2.326 m²
- Wettbewerb
1. Preis / 2015
- Fotos
Yohan Zerdoun
- Kategorien Öffentlich, Weiterdenken, Vernetzt
